首页 > 家居服 > 国韵村 现代简约

国韵村 现代简约

http://www.jiajufo.com 2022-03-02 00:00 家居服 
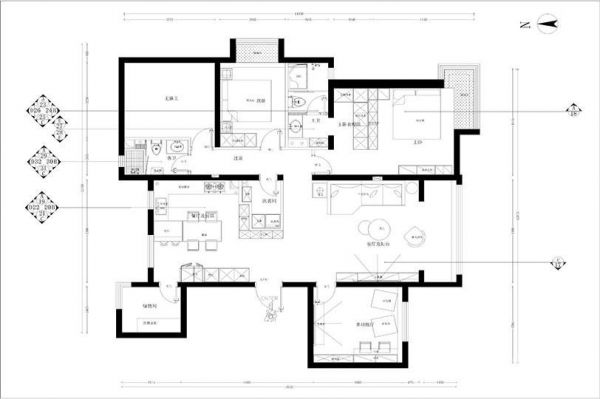
案例详情 这套面积为119平米的平层设计是两室两卫再加一个功能间,采用现代风格的设计,以低调稳重的配色和精致细腻的材质表现,展现出了奢华大气的空间格调。 国韵村 现代简约

客厅的整体设计简约不复杂,石膏装饰的沙发背景墙,四周的筒灯与灯带的设计,光线上相辅相成,尽显大气。

国韵村 现代简约

门厅位置,右边是厨餐厅左边是客厅,很好的把厨房和客厅分割开,餐桌边配上酒柜冰箱,对面有一组玄关柜。

国韵村 现代简约

餐厅这边根据客户的需求加入了一组电气柜,开放式厨房,浅沙石纹的柜门,整个空间显得格外沉稳,岛台与餐桌上下有高低差,具有层次感

国韵村 现代简约

本设计厨房餐厅一体式的,开放式厨房,浅沙石纹的柜门,整个空间显得格外沉稳,岛台与餐桌上下有高低差,具有层次感

国韵村 现代简约

电视背景墙采用整体的设计理念,电视整个嵌入到柜子里,背景墙下部留有空格方便放东西,增加美观性。

国韵村 现代简约

此方案布局根据客户的家庭情况,改造出三居两卫格局,比之前多增加了个多功能室,从而增加对生活的体验感。

相关知识

上河村 现代简约
国方家居:国方旗“韵”
御景山 现代简约
金隅国际 现代简约
设计之光 | 郑韵荣获包豪斯现代设计奖优胜奖
清韵红木打造富含文化气息的舒适家居
守护国粹,小天鹅再创国潮美学新概念
国森玛克——金属元素点亮现代美式风尚
SOHO现代城 现代简约
《梦想改造家7》| 焕新千年古村,恒洁助力乡村复兴

网址: 国韵村 现代简约 http://www.jiajufo.com/newsview111286.html
相关图片推荐
嘉斯顿杭州旗舰店欧昱佳&周丹:从一见钟情到笃定前行,实干冲刺年度千万业绩
圣米兰门窗×网易家居走访仙居四家设计机构,共探理想生活新表达
五一居家慢生活,才是年轻人的顶配治愈假期
智聆新声,风奕随行|恩博力风奕柜机语音款焕新上市
凭什么新标门窗是大玻璃门窗领导者?罗永浩【交个朋友】给出答案
星光齐聚大湾区:恒洁以“文旅+音乐”双向叙事诠释“乐动此间”
採光Seeklight以焕金之艺,淬炼当代东方器物之美,四大品牌联合参展,共聚深圳礼品展