首页 > 家居服 > 海润国际现代简约装修风格

海润国际现代简约装修风格

http://www.jiajufo.com 2023-06-12 11:00 家居服 
案例详情 营造两个人喜欢的且惬意的生活方式,个性,随性,浪漫,有格调,兴趣相伴,功能相伴,创作相伴,理想相伴。 海润国际现代简约装修风格

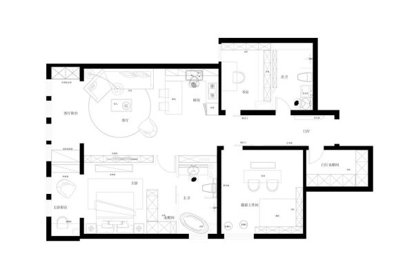
客餐厅厨房设计在一个空间,整体以奶油色调来搭配,餐桌用岩板的材料来设计和橱柜形成搭接的关系,厨房吊地柜中间的岩板穿插到沙发背景墙的位置,及达到厨房台面防水也实现了客餐厨的设计统一。

海润国际现代简约装修风格

主卧室空间设计了一个衣帽间的区域,即有了衣帽间的仪式感,也可以挡一下主卫门对着床的弊端,侧边墙设计了大面积的镜子,视野上扩充了衣帽间的大小。

海润国际现代简约装修风格

书房空间是原本的厨房空间改造过来的,通过柜体隐蔽了所有的管道烟道,整体设计硬朗,地面采用鱼骨拼的灰色地板,浅灰色门板加深色柜体,典型的男性独立书房空间。

海润国际现代简约装修风格

儿童房空间有限,采用的榻榻米的形式设计,书柜,书桌,衣柜于一体的空间设计,地面选用温馨的地板,让孩子房间更舒适。

海润国际现代简约装修风格

户型是全南的户型,三居室空间,客户需要有一个书房空间,给客户把厨房设计到了客厅空间,餐吧区域,把厨房改成了书房空间。

相关知识

海润国际现代简约装修风格
海润国际现代简约北京装修
191㎡现代风格装修,简约清爽,享受“无车马
新华联国际现代简约北京装修
现代简约装修风格特点介绍
73㎡现代简约风格装修案例
113平米现代简约风格装修案例
西山枫林现代简约装修风格
现代简约装修风格,其实很养眼
65㎡现代简约装修风格,其实很养眼

网址: 海润国际现代简约装修风格 http://www.jiajufo.com/newsview165449.html
相关图片推荐
挑战行业极限!科创者mini5完成超10万次“自残式”撞击极限测试,承诺10年质保
全屋多点用水稳定的终极方案!庆东纳碧安燃气热水器技术解析
CO泄漏问题不容忽视!揭秘庆东纳碧安燃气热水器如何做到安全无死角
宝岛家居外贸业务靠谱吗?深耕佛山的高端全屋定制品牌全解读
比OLED更懂你眼睛?揭秘海信RGB-MiniLED超能力
百吋电视谁最“夯”?看数据说话!海信全球百吋出货量稳居第一
反向春运不凑活!海信百吋承包三代人的快乐