首页 > 家居服 > 万象新天现代简约北京装修

万象新天现代简约北京装修

http://www.jiajufo.com 2023-06-12 11:02 家居服 
案例详情 简约主义风格是以单种着色作为基本色调,如白色浅黄色等,给人以纯净,文雅的感觉,增加室风的亮度,使人容易产生乐观的情感。也可以很好地对比衬托,调和鲜艳的色彩,产生美好的节奏感韵律感,像一个干净的舞台,能大限度地表现陈设的品质,灯具的光亮,色彩的活力。 万象新天现代简约北京装修

客厅悬浮背景墙整个屋子的亮点从沙发看向电视墙是悬空的背景墙完美加持了客厅纵向深感视觉上显得空间更有层次感。

万象新天现代简约北京装修

开放式餐厅更加有弧形设计,整体灰咖色调更加耐看有质感 适合面积较大的户型,可结合自家餐厅形状,面积大小及用餐人数来设计。

万象新天现代简约北京装修

卧室整体采用浅咖色调,原木色地板加上三面环窗的明亮大阳台,突显整体的简约风与高级感,运用几何窄边设计显得更加利落干脆 。

万象新天现代简约北京装修

书房客厅一体化,视觉上显得空间更有层次感,隔断出功能区,地台增加仪式感 ,整个空间更加透亮,功能上也分区有界,办公看书也能随时与客厅的家人互动。

万象新天现代简约北京装修

开放式厨房 厨房和餐厅更加宽敞,明亮,由单一的功能区变成多功能区,从而增加舒适性,也简化了厨房的动线,节约了到达便利性,为可视达到空间增添了更多趣味性 ,双重吊柜方便储物。

万象新天现代简约北京装修

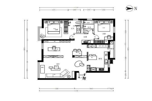
设计后的户型更加流畅,将原来的儿童房改为开放式办公区域 。办公的同时也可以跟家人互动,开放式厨房不仅节省空间而且显得格局空间更加开阔 。

相关知识

万象新天现代简约北京装修
万象新天现代简约风老房翻新
贡院九号现代简约北京装修
新华联国际现代简约北京装修
紫金长安现代简约北京装修
汤泉逸墅现代简约北京装修
融域嘉园现代简约北京装修
土儿胡同现代简约北京装修
海润国际现代简约北京装修
华樾国际现代简约-北京装修

网址: 万象新天现代简约北京装修 http://www.jiajufo.com/newsview165451.html
相关图片推荐
挑战行业极限!科创者mini5完成超10万次“自残式”撞击极限测试,承诺10年质保
全屋多点用水稳定的终极方案!庆东纳碧安燃气热水器技术解析
CO泄漏问题不容忽视!揭秘庆东纳碧安燃气热水器如何做到安全无死角
宝岛家居外贸业务靠谱吗?深耕佛山的高端全屋定制品牌全解读
比OLED更懂你眼睛?揭秘海信RGB-MiniLED超能力
百吋电视谁最“夯”?看数据说话!海信全球百吋出货量稳居第一
反向春运不凑活!海信百吋承包三代人的快乐