首页 > 家居服 > 北京金都杭城现代简约风格装修

北京金都杭城现代简约风格装修

http://www.jiajufo.com 2023-07-02 09:00 家居服 
案例详情 整体选择黑白灰的色调搭配,经典又时尚干净简洁的设计,清晰利落的线条表达,开放式的空间格外宽敞明亮,给人一种简约舒适感。 北京金都杭城现代简约风格装修

黑白灰为主色调,彰显朴素大气之美,家具皆选择了简单而有质感的款,白墙、黑白挂画、灰色沙发和地毯,在客厅中被运用得淋漓尽致 呈现出鲜明的层次感和节奏韵律

北京金都杭城现代简约风格装修

以黑白为基调,营造通透感,让光线自然呼吸在整个空间用材质打造丰富的视觉层次感解决了软装不足略显空洞的问题开放格的设计,解决收纳问题的同时也起到点缀墙面的作用

北京金都杭城现代简约风格装修

利用床头的空间设计一组衣柜,利用衣柜的延伸设计一个悬空床头柜,不占空间又方便实用。床头背靠上方我们也在柜子上设计一条开放格,可以用来摆放日常用品

北京金都杭城现代简约风格装修

开放式厨房打破沉寂感,让空间通透感增强,充分利用空间,餐厨一体,空间看着开阔了不少,更加通透,休闲时偶尔小酌一杯,为生活增添情趣感。

北京金都杭城现代简约风格装修

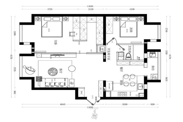
根据业主需求,在主卧室做了衣帽间,对墙体进行了调整,增加主卧的储物空间,入户处设计鞋柜,卫生间设计干湿分离,方便使用,厨房餐厨一体,让空间通透感增强,通过布局的设计整体,整体布局分区明显。

相关知识

北京金都杭城现代简约风格装修
贡院九号现代简约北京装修
新华联国际现代简约北京装修
万象新天现代简约北京装修
紫金长安现代简约北京装修
土儿胡同现代简约北京装修
融域嘉园现代简约北京装修
亿城天筑现代简约北京装修
现代简约装修风格特点介绍
汤泉逸墅现代简约北京装修

网址: 北京金都杭城现代简约风格装修 http://www.jiajufo.com/newsview167196.html
相关图片推荐
挑战行业极限!科创者mini5完成超10万次“自残式”撞击极限测试,承诺10年质保
全屋多点用水稳定的终极方案!庆东纳碧安燃气热水器技术解析
CO泄漏问题不容忽视!揭秘庆东纳碧安燃气热水器如何做到安全无死角
宝岛家居外贸业务靠谱吗?深耕佛山的高端全屋定制品牌全解读
比OLED更懂你眼睛?揭秘海信RGB-MiniLED超能力
百吋电视谁最“夯”?看数据说话!海信全球百吋出货量稳居第一
反向春运不凑活!海信百吋承包三代人的快乐